To be built Custom Ranch home. Photos are of a previously built home with the same elevation and floor plan.
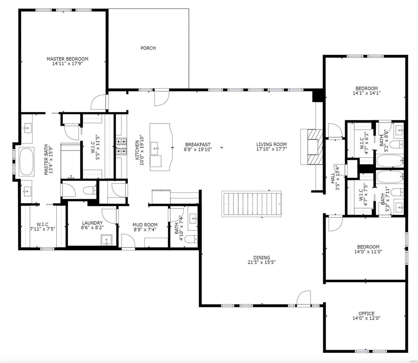
| Room | Dimensions (sq.rt) |
|---|---|
| Primary Bedroom (Level-Main) | 15 x 18 |
| Bedroom (Level-Main) | 14 x 14 |
| Bedroom (Level-Main) | 14 x 11 |
| Breakfast Room (Level-Main) | 9 x 20 |
| Dining Room (Level-Main) | 21 x 15 |
| Kitchen (Level-Main) | 10 x 20 |
| Laundry (Level-Main) | 9 x 8 |
| Office (Level-Main) | 14 x 12 |
| Primary Bathroom (Level-Main) | 13 x 16 |
| Mud Room (Level-Main) | 9 x 7 |
| Laundry (Level-Main) | 9 x 8 |
| Bathroom (Level-Main) | 5 x 7 |
| Bathroom (Level-Main) | 5 x 8 |
| Bathroom (Level-Main) | 5 x 8 |
Listing Courtesy of Patton Properties - [email protected]